
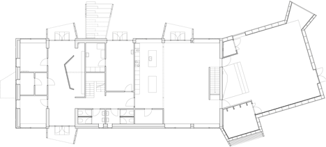
Il firm di architetti Cornelius + Vöge ha realizzato un centro ricreativo che si riallaccia idealmente al design delle capanne da pesca danesi…

Il firm di architetti Cornelius + Vöge ha realizzato un centro ricreativo che si riallaccia idealmente al design delle capanne da pesca danesi…