
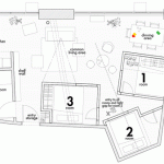
Il firm di architetti newyorchesi Studio Cedena ha da poco realizzato un progetto assai bizzarro, piazzando tre scatole bianche all’interno di un loft di Brooklyn, realizzando così 3 stanze da letto per rispettivi inquilini. Allo studio era stato chiesto di ricavare alcuni appartamenti per 3 occupanti da uno spazio industriale di 60 metri quadri. Gli architetti hanno aggiunto tre scatole compatte creando tre stanze da letto, cercando di ottimizzare gli spazi comuni.











